portfolio
Books Inc.
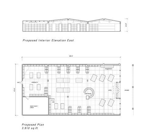
855 El Camino Real, Palo Alto
Town & Country Shopping Center
Creating character in unlikely places
A retail renovation in a suburban shopping center, this project involves an interior remodel and new façade. The emphasis was placed on bringing light into the space, showcasing the relatioinship between the selected material palette and the exposed structure.
Remodel: 4000 sf - Façade: 70 linear feet




