portfolio
Hale Residence
Russian Hill, San Francisco
Fitting In
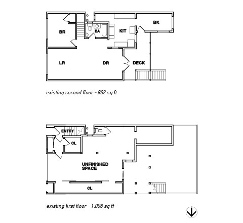
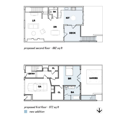
Making the most of the space available, this project involves the renovation of the unfinished ground floor garage level and the reconfiguration of the upstairs living level. We seek to integrate the two floors and create a direct connection with the west-facing
rear garden.
Remodel: 1750 sf - entire home




