portfolio
Ramona Ave Residence
Oakland, California
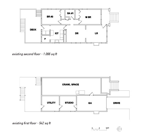
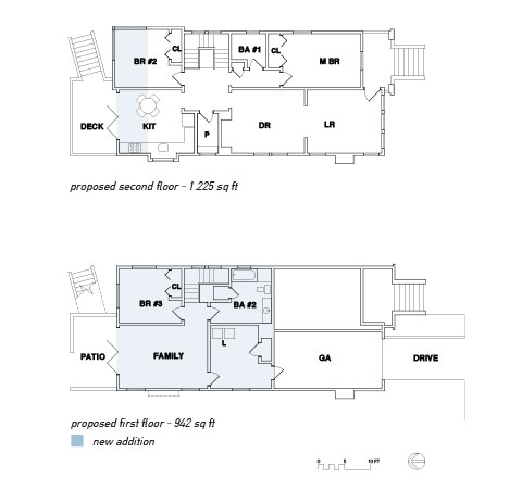
Rebirth of 1920s Bungalow
An update to a 1920s East Bay craftsmen bungalow, this project renovates the main living level to optimize views to adjacent greenery, and builds out the existing basement floor adding a family room, bedroom, and bath.
Remodel: 460 sf addition - new internal stair, family room, second bath, and bedroom




