portfolio
Kondy Residence
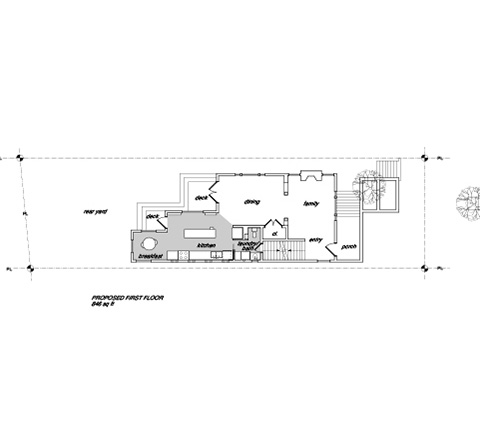
Sea Cliff, San Francisco
Serene garden kitchen
Our clients, an artist and an illustrator, sought to transform an outdated kitchen into a light filled retreat. The remodel adapts and enhances existing features, including the adjacency to the exterior garden. New modern finishes and fixtures are incorporated throughout.
Remodel: 274 sf - first floor kitchen, laundry, half-bath, breakfast nook







