portfolio
Malley Residence
West Portal, San Francisco
Re-imagining the modern home
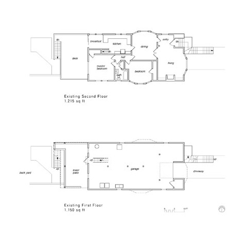
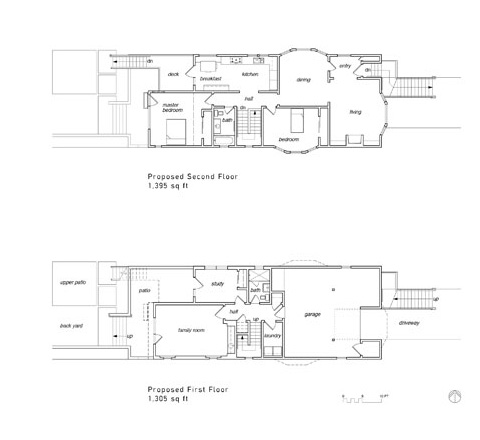
Looking towards the future, this project involves the interior remodel of a two-bedroom house. The scope of work also includes the creation of a master suite addition at the rear of the home.
Remodel: 1250 sf - master bedroom, master bath, kitchen
Addition: 170 sf - family room, debroom, bath, laundry, utilities, stairs







