portfolio
Milner Residence
Lower Pecific Heights, San Francisco
New garden dwelling unit
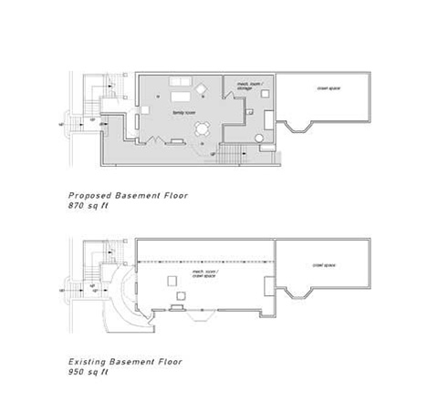
This project involves the creation of a new second dwelling unit at the crawl space of an existing single-family residence. The addition includes a new garden retaining wall, stairs, and a landscaped walkway.
Addition: 890 sf - family room, garden walk, exterior stairs







