portfolio
Papps Residence
Berkeley, Alameda County
Understanding the craftsman tradition
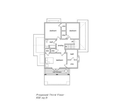
Capturing the sun and view, this project consists of a three-story addition on a craftsman home originally constructed
in 1922.
Addition: 525 sf - sunroom, workshop,
roof terrace







